kuca-petrovic-logo
/

Knjaževačka,

Durlan, Pantelej

ID: p-013786

/

Prodaja

/

Stan

253.000 €

Osnovne informacije

Cena po m2
2200.00 €
Sprat
2
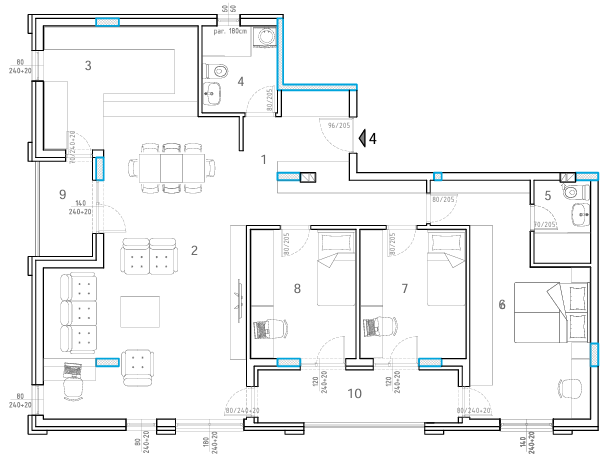
Površina
115 m²
Nameštenost
Nenamešten
Broj spavaćih soba
3
Broj kupatila
2
Grejanje
Etažno (kotao na struju zaseban)
Parking
Struktura
Više od tri spavaće sobe
Stolarija
PVC

Ostale informacije

Interfon
Da
Video nadzor
Ne
Smart Home
Ne
Tip interneta
Lift
Da

Opis

Na prodaju stan u novogradnji u blizini Rode, projektovane površine 115 Mm2. Nalazi se na jednoj od najpopularnijih lokacija za porodični život zbog blizine škole, vrtića i svih potrebnih infrastrukturnih objekata. Sastoji se od ulaznog hodnika, dnevnog boravka sa trpezarijom, kuhinje, tri spavaće sobe,dva kupatila i dve terase.Stambeno-poslovni objekat je P+4, izgrađen po svim savremenim standardima, Spoljašnja stolarija je PVC sa roletnama sa elektropodizačima,unutrašnja od medijapana sa sigurnosnim ulaznim vratima. Na podovima je troslojni tarket parket dok je keramika u kuhinji i kupatilu velikih dimenzija, prve klase.Spoljašnja izolacija je 10cm debljine, na podovima i između stanova postoji zvučna izolacija. Grejanje je etažno sa kotlom na struju i ugrađenim grejnim telima. Svakom stanu pripada ostava u podrumu zgrade dok se parking mesto dodatno naplaćuje. Moguća je kupovina putem stambenog kredita. Za kupce prvog stana postoji povrat PDV-a. Rok završetka je septembar 2027. godine. Ovo je samo deo naše ponude. Za više informacija, stojimo vam na raspolaganju.

Lokacija