kuca-petrovic-logo
/

Knjaževačka,

Durlan, Pantelej

ID: p-013782

/

Prodaja

/

Stan

142.050 €

Osnovne informacije

Cena po m2
2200.00 €
Sprat
1
Površina
64 m²
Nameštenost
Nenamešten
Broj spavaćih soba
2
Broj kupatila
1
Grejanje
Etažno (kotao na struju zaseban)
Parking
Struktura
Dvoiposoban
Stolarija
PVC

Ostale informacije

Interfon
Da
Video nadzor
Ne
Smart Home
Ne
Tip interneta
Lift
Da

Opis

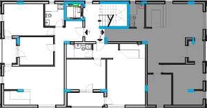
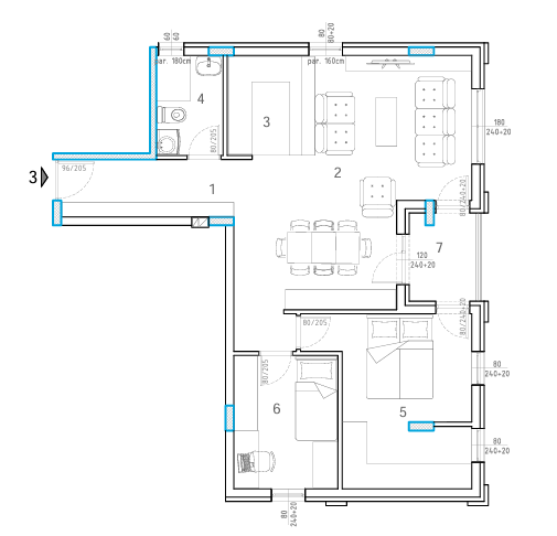
Na prodaju stan u novogradnji u blizini Rode, projektovane površine 64.56 m2. Nalazi se na jednoj od najpopularnijih lokacija za porodični život zbog blizine škole, vrtića i svih potrebnih infrastrukturnih objekata. Sastoji se od ulaznog hodnika, dnevnog boravka sa trpezarijom, kuhinje, dve spavaće sobe, kupatila i terase.Stambeno-poslovni objekat je P+4, izgrađen po svim savremenim standardima, Spoljašnja stolarija je PVC sa roletnama sa elektropodizačima,unutrašnja od medijapana sa sigurnosnim ulaznim vratima. Na podovima je troslojni tarket parket dok je keramika u kuhinji i kupatilu velikih dimenzija, prve klase. Spoljašnja izolacija je 10cm debljine, na podovima i između stanova postoji zvučna izolacija. Grejanje je etažno sa kotlom na struju i ugrađenim grejnim telima. Svakom stanu pripada ostava u podrumu zgrade dok se parking mesto dodatno naplaćuje. Moguća je kupovina putem stambenog kredita. Za kupce prvog stana postoji povrat PDV-a. Rok završetka je septembar 2027. godine. Ovo je samo deo naše ponude. Za više informacija, stojimo vam na raspolaganju.

Lokacija