kuca-petrovic-logo
/

Crnogorska,

Donja Vrežina, Pantelej

ID: p-15426

/

Prodaja

/

Stan

91.962,00 €

Osnovne informacije

Cena po m2
1799.00 €
Sprat
1
Površina
51 m²
Nameštenost
Nenamešten
Broj spavaćih soba
0
Broj kupatila
1
Grejanje
Norveški radijatori
Parking
Posebno parking mesto
Struktura
Dvosoban
Stolarija
PVC

Ostale informacije

Interfon
Da
Video nadzor
Ne
Smart Home
Ne
Tip interneta
Lift
Da

Opis

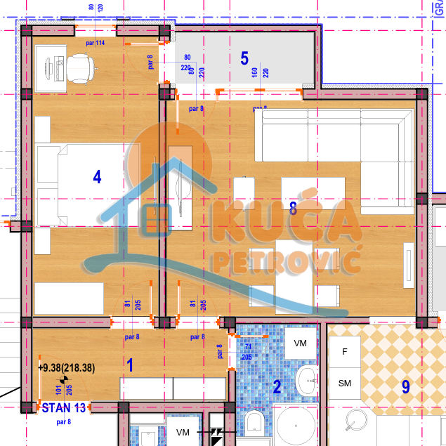
Na prodaju stan u izgradnji u naselju Donja Vrežina iznad Lidla i DISa. U blizini su OŠ Mika Antić, Durlanska pijaca, razni marketi, autobusko stajalište. Stan je projektovane površine 51.09m2, nalazi se na prvom spratu (po projektu dostupan još na drugom i trećem spratu.) u odličnoj novogradnji. Po strukturi je dvosoban i sastoji se od ulaznog hodnika, dnevne sobe sa trpezarijom i kuhinjom, spavaće sobe, kupatila i terase. Gradi se po visokim standardima, demit fasada, energetski pasoš, spoljna PVC stolarija, zidne i podne obloge od prvoklasne keramike, tarket - parket na podovima, svaka jedinica dobija podrumsku prostoriju, a parking mesto se doplaćuje. Očekivani rok zavšetka radova je sredinom 2027-me godine. Odlična ponuda, za više informacija pozovite nas!

Lokacija