kuca-petrovic-logo
← Nazad

Stan u okviru projekta 'Novogradnja Bjegović'

Branko Bjegović

Opis

>Novogradnja Bjegović

 

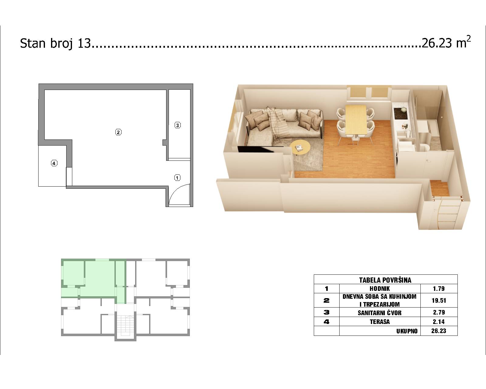
U ponudi je moderna stambena zgrada spratnosti Po + P + 3, projektovana sa posebnim akcentom na kvalitet gradnje, energetsku efikasnost i komfor stanovanja. Stanovi su projektovane površine od 20-43m2, po strukturi garsonjere, jednoiposobni, dvoiposobni. Zgrada je građena po savremenim standardima, sa fasadom..Unutrašnja stolarija obuhvata sobna vrata od furniranog medijapana, dok su ulazna vrata sigurnosna. Na podovima je postavljen parket, dok je u kupatilima i kuhinjama ugrađena granitna keramika prve klase. Parking mesta se nalaze na parceli i dodatno se naplaćuju. Rok završetka izgradnje je jun 2026. godine. Idealna prilika za kvalitetno stanovanje ili sigurnu investiciju na mirnoj lokaciji u Nišu.

Cena: 47.000,00 €
Kvadratura: 26,00m2 (ukupna), 26,00m2 (uknjižena)
Struktura: Garsonjera - Studio
Broj kupatila: 1, broj terasa: 1
Jedinice:
  • Sprat: 3, br.stana: 13 cena:47.000,00 €