kuca-petrovic-logo
← Nazad

Stan u okviru projekta 'Stambeni objekat u blizini Palilulske pijace'

Palilula

Opis


Stambeni objekat smešten je u blizini Palilulske pijace, na izuzetno atraktivnoj, mirnoj i prestižnoj lokaciji, idealnoj za savremen porodični život. Projekat je osmišljen prema najvišim standardima moderne gradnje, spratnosti Po + Pr + 5, uz video nadzor i video-interfon sistem, koji obezbeđuju visok nivo sigurnosti i privatnosti za stanare. Stanovi su površine 51-92 m2. Posebna pažnja posvećena je kvalitetu materijala i svakodnevnom komforu porodica. Podovi su obloženi troslojnim parketom velikog formata sa visokim lajsnama, koji prostoru daje toplinu i eleganciju, dok je keramika velikog formata prve klase pažljivo birana za kuhinje i kupatila. Spoljašnja stolarija je aluminijum–drvo sa troslojnim staklom punjenim argonom, uz termoizolacione roletne na elektro pogon, čime se postižu izuzetna termo i zvučna izolacija, energetska efikasnost i prijatan ambijent tokom cele godine.

Grejanje je podno, sa sopstvenim kotlom, što omogućava ravnomernu toplotu u svim prostorijama i maksimalnu udobnost, posebno pogodnu za porodice sa decom. Stanovima su na raspolaganju parking mesta na parceli, kao i parking u podzemnoj i nadzemnoj garaži, što obezbeđuje maksimalnu praktičnost i sigurnost za svakodnevni porodični život. Planirani završetak radova je kraj 2027. godine. Postoji mogućnost kupovine parking mesta, a kupci prvog stana ostvaruju pravo na povraćaj PDV-a.

Cena: 122.380,00 €
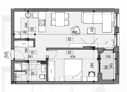
Kvadratura: 50,57m2 (ukupna), 50,57m2 (uknjižena)
Struktura: Dvosoban
Broj kupatila: 1, broj terasa: 1
Jedinice:
  • Sprat: 4, br.stana: 22 cena:122.380,00 €