kuca-petrovic-logo
← Nazad

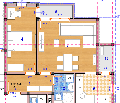
Stan u okviru projekta 'Donja Vrežina, Novoprojektovana ulica'

Donja Vrežina

Opis

Odlična novogradnja - Minovo naselje, iznad Lidla

Na prodaju odlična novogradnja u izgradnji, u naselju Donja Vrežina iznad Lidla i Disa. U blizini su OŠ Mika Antić, Durlanska pijaca, razni marketi, autobusko stajalište.  Gradi se po visokim standardima, demit fasada,  predviđena zgrada sa energetskim pasošem, spoljna prvoklasna PVC stolarija sa alu roletnama, zidne i podne obloge od prvoklasne keramike, tarket- parket na podovima. Svaka jedinica dobija podrumsku prostoriju, a parking mesto se doplaćuje. Očekivani rok zavšetka radova je sredinom 2027-te godine. Odlična ponuda, za više informacija pozovite nas!

Cena: 89.408,00 €
Kvadratura: 51,09m2 (ukupna), 51,09m2 (uknjižena)
Struktura: Dvosoban
Broj kupatila: 1, broj terasa: 2
Jedinice:
  • Sprat: 2, br.stana: 9 cena:89.408,00 €