kuca-petrovic-logo
← Nazad

Stan u okviru projekta 'Trošarina'

Trošarina

Opis

>>

>NOVOGRADNJA NA TROŠARINI

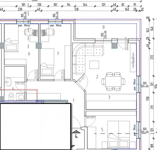
Na prodaju stanovi  u izgradnji na Trošarini, na lokaciji idealnoj kako za život tako i za izdavanje. Zgrada je PO+PR+3, sa 14 stambenih jedinica. Spoljašnja izolacija je stiropor  sa demit fasadom. Stolarija je PVC sa roletnama. Na podovima je predviđen prvoklasni parket ili tarket. Grejanje I hlađenje inverter klima.  Moguća je kupovina putem stambenog kredita. Za kupce prve nekretnine postoji povrat PDV-a. Predviđen rok završetka je 01.09.2027. godine. Ovo je samo deo naše ponude, za više informacija, stojimo vam na raspolaganju.

Cena: 118.289,00 €
Kvadratura: 63,94m2 (ukupna), 63,94m2 (uknjižena)
Struktura: Troiposoban
Broj kupatila: 1, broj terasa: 1
Jedinice:
  • Sprat: 1, br.stana: 4 cena:118.289,00 €