kuca-petrovic-logo
← Nazad

Stan u okviru projekta 'Donja Vrežina'

Donja Vrežina

Opis

>>

Novogradnja, Donja Vrežina, Parking, PDV

U neposrednoj blizini  DIS-a, Lidl-a i naselja Beverly Hills“.

Moderan stambeni objekat spratnosti Po+P+4, sa ukupno 21-u stambenu jedinicu i toliko podrumskih prostorija, kao i parking mesta.

Gradi se po visokim standardima, demit fasada, energetski pasoš, spoljna PVC (antracit) stolarija, podne obloge od prvoklasne keramike I tarketa.

Mogućnost kupovine parking mesta.

Očekivani rok zavšetka radova je januara 2028-e godine. 

Cena: 113.070,00 €
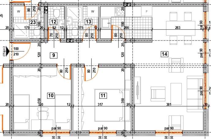
Kvadratura: 64,61m2 (ukupna), 64,61m2 (uknjižena)
Struktura: Trosoban
Broj kupatila: 2, broj terasa: 0
Jedinice:
  • Sprat: prizemlje, br.stana: 2 cena:113.070,00 €