kuca-petrovic-logo
/

Mokranjčeva,

Mokranjčeva, Palilula

ID: p-12621

/

Prodaja

/

Stan

144.220,00 €

Osnovne informacije

Cena po m2
1760.00 €
Sprat
Površina
81 m²
Nameštenost
Nenamešten
Broj spavaćih soba
3
Broj kupatila
1
Grejanje
Norveški radijatori
Parking
Posebno parking mesto
Struktura
Troiposoban
Stolarija
Aluminijumska

Ostale informacije

Interfon
Da
Video nadzor
Ne
Smart Home
Ne
Tip interneta
Lift
Da

Opis

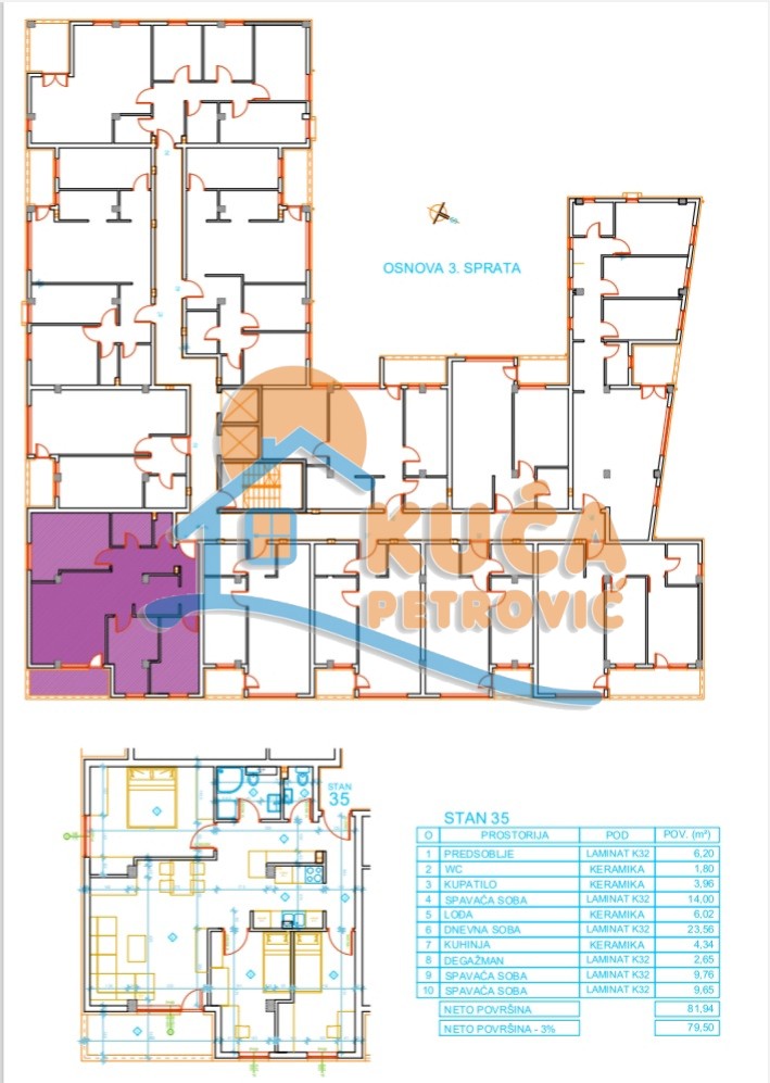
Na prodaju stan u novogradnji u Mokranjčevoj spratnosti Po+P+4, projektovane površine 81,94m2. Nalazi se na trećem spratu u zgradi sa liftom. Stan je po strukturi je troiposoban i sastoji se od ulaznog hodnika, dnevne sobe sa trpezarijom i kuhinjom, tri spavaće sobe, kupatila, toaleta, degažmana i terase. Stanu pripada i podrumska prostorija. Fasada je od kamene vune 10cm. Fasadna stolarija je od višekomornih PVC profila, sa odgovarajućim okovima i aluminijumskim roletnama sa termo ispunom , zastakljena niskoemisionim vakumiranim staklima. Unutrašnja stolarija - sobna vrata od furniranog medijapana i sigurnosna vrata sa atestom na vodootpornost. Na podovima je laminat debljine 10mm, visine do 8cm. Keramika je granitna u prvoj klasi. Grejanje je u vidu mermernih grejnih tela u kombinaciji sa kaloriferima (instalirano u svakoj prostoriji), priključena na el. instalaciju stana, sa odabranom vrstom termostata u skladu s namenom prostorije i sa ugradnjom po jednog klima uredjaja za svaki stan, sa namenom za letnji period. Parking mesta su na parceli i dodatno se naplaćuju. Rok završetka je kraj 2027. Godine. Za kupce prvog stana postoji povrat PDV-a i moguća je kupovina na kredit. Ovo je samo deo naše ponude, za vise informacija, stojimo vam na raspolaganju.

Lokacija